Skip to main content

 CONSTRUCTION • RENOVATION •  INVESTISSEMENT IMMOBILIER • VALORISATION DE VOTRE PATRIMOINE

Résidence André

Malmedy - centre

5 Appartements
Reste 1 appartement à vendre

Résidence André

4, rue de la Tannerie à B - 4960 MALMEDY

5 Appartements
Reste 1 duplex à vendre

Située au cœur de la ville en face de la place Saint-Géréon.

  • Appartements entièrement rénovés avec ascenseur.
  • L’arrière du bâtiment donne sur le parc de la maison Villers offrant un espace vert au centre de la ville.

 

1er-etage
implantation-1er
implantation-rez
rez

 

180604-Malmedy-appartements-0030
180604-Malmedy-appartements-0029
180604-Malmedy-appartements-0028
180604-Malmedy-appartements-0027
180604-Malmedy-appartements-0024
180604-Malmedy-appartements-0020
180604-Malmedy-appartements-0018
180604-Malmedy-appartements-0016
180604-Malmedy-appartements-0015
180604-Malmedy-appartements-0012
180604-Malmedy-appartements-0005
180604-Malmedy-appartements-0004
180604-Malmedy-appartements-0002


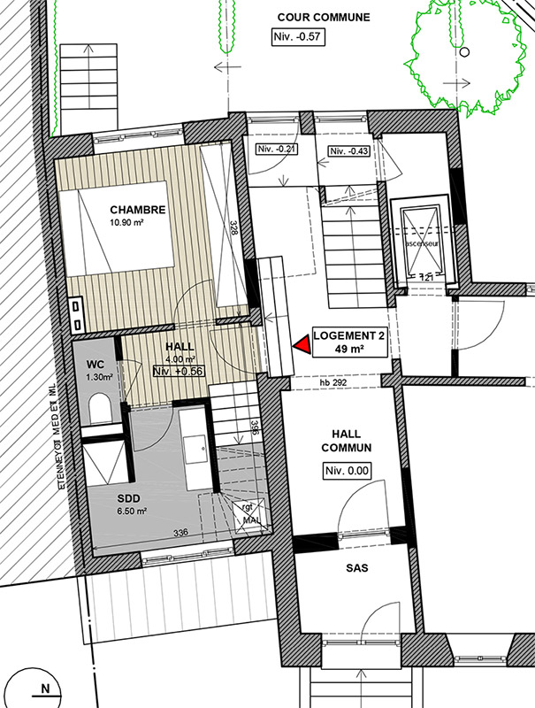
Description :

REZ

 
Superficie totale au sol 49m2
Hall 4m2
WC 1,3m2
Salle de douche 6,5m2
Chambre 10,9m2

 

1er ETAGE

 
Séjour 21,6m2

 


Pour plus de renseignements

F.LODOMEZ CONSTRUCTION
44, Hauptstrooss
L-9980 WILWERDANGE
LUXEMBOURG

Tel.: +352 97 92 93
Fax: +352 97 93 90
Nous Contacter

  • Résidence André

    Malmedy - centre

    5 Appartements
    Reste 1 appartement à vendre

  • Construction d'une résidence de 2x4 appartements à Luxembourg

    Reste 2 unités à vendre

    Luxembourg-ville

    Situation exceptionnelle à Luxembourg-ville. Rue SCHETZEL 128 L-2518 Luxembourg-ville

  • Résidence à Weiswampach

    4 résidences (tout est vendu)

    Gruuss-Strooss L - 9991 Weiswampach

  • 4 maisons unifamilliales à basse énergie à Grevels

    5 rue de Bastogne à L-8818 Grevels

     

  • 5 maisons unifamilliales à basse énergie à Lellig

    Duerfstrooss 2 L-6839 Lellig

     

  • Résidence de 12 appartements + 2 maisons à WEISWAMPACH

    59 Gruuss-Strooss, 9991 Weiswampach

     

  • 3 maisons mitoyennes à basse énergie à HEFFINGEN

    3 maisons en bande dans le petit village de HEFFINGEN. Quartier très tranquille.

    1 maisons vendues sur 3

     1, Beezebierg à L–7650 Heffingen

     

  • Résidences de 7 unités à ROLLINGEN

    7 appartements près de Mersh à Rollingen, à 5 minutes à pied de la gare, à 5 min du centre-ville à pied.

     Rue de Luxembourg 3-5 L–7540 Rollingen